Skip to main content Skip to footer

Mixed Used Neighborhood (MU-N)

Future Land Use Map Designation Cut Sheet


Map Color  
Sample Zoning  R-8, R-15, TN-R, TN-C, L-O, and C-N
Description

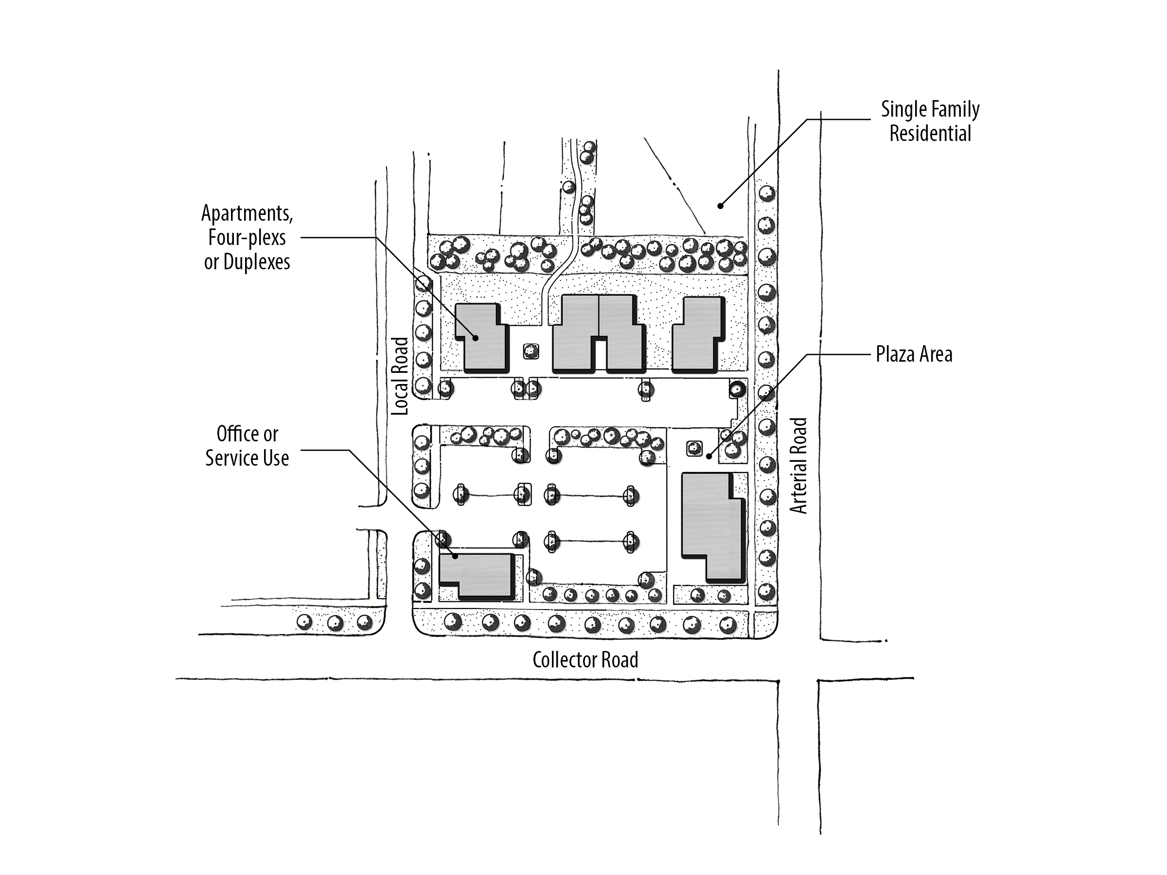
The purpose of this designation is to assign areas where neighborhood-serving uses and dwellings are seamlessly integrated into the urban fabric. The intent is to avoid predominantly single-use developments by incorporating a variety of uses. Land uses in these areas should be primarily residential with supporting non-residential services. Non-residential uses in these areas tend to be smaller scale and provide goods or services that people typically do not travel far for (approximately one mile) and need regularly. Employment opportunities for those living in the neighborhood are encouraged. Connectivity and access between the non-residential and residential land uses is particularly critical in MU-N areas. Tree-lined, narrow streets are encouraged. Developments are also encouraged to be designed according to the conceptual MU-N plan depicted.

Sample Uses

Sample uses appropriate in MU-N areas include: alley-loaded single-family homes, townhouses, multi-family developments, neighborhood grocer, drug stores, coffee/sandwich/ice-cream shops, vertically integrated buildings, live-work spaces, dry cleaner/laundromat, salons/spas, daycares, neighborhood-scale professional offices, gift shops, schools, parks, churches, clubhouses, public uses, and other appropriate neighborhood-scale uses.

Design Direction
  • Development should comply with the items listed for development in all Mixed Use areas.
  • Residential uses should comprise a minimum of 40% of the development area at gross densities ranging from 6 to 12 units/acre.
  • Non-residential buildings should be proportional to and blend in with residential buildings.
  • Three specific design elements should be incorporated into a mixed use development: a) street connectivity, b) open space, and c) pathways.
  • Unless a structure contains a mix of both residential and office, or residential and commercial land uses, maximum building size should be limited to a 20,000 square-foot building footprint. For the development of public school sites, the maximum building size does not apply.
  • Supportive and proportional public and/or quasi-public spaces and places such as parks, plazas, outdoor gathering areas, open space, libraries, and schools should comprise a minimum of 10% of the development area. Outdoor seating areas at restaurants do not count towards this requirement.
  • Where the development proposes public and quasi-public uses to support the development above the minimum 10%, the developer may be eligible for additional residential densities and/or an increase to the maximum building footprint.
  • A straight or curvilinear grid or radiating street pattern is encouraged for residential areas, and most blocks should be no more than 500’ to 600’ long, similar to Old Town or Heritage Commons; larger blocks are allowed along arterial streets.

Site Pattern

References & Resources

1. City of Meridian Comprehensive Plan

https://meridiancity.org/compplan

2. Meridian Unified Development Code

https://meridiancity.org/UDC

3.  Meridian Architectural Standards Manual

https://meridiancity.org/design

Notes: See the References & Resources section for additional materials. When determining appropriate zoning of a property, the transition from existing, adjacent zoning designations, as well as future anticipated land use should be considered.

Questions?

Contact the Planning Division at 33 E Broadway Ave, Suite 102, Meridian ID 83642, or 208.884.5533, or https://meridiancity.org/planning/, or planning@meridiancity.org.

Last Modified: 04/01/20